Beschreibung
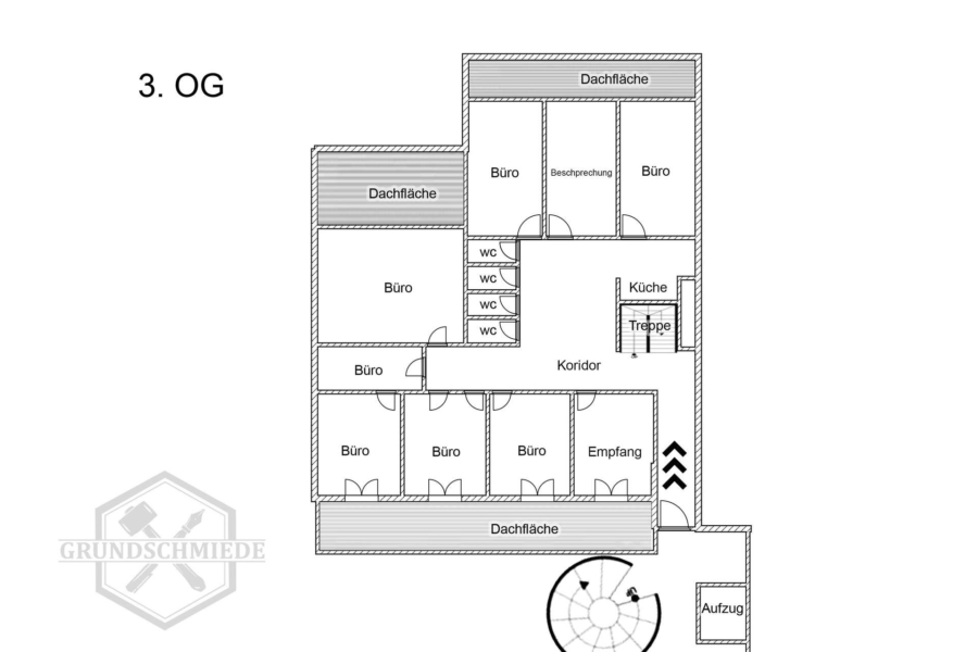
Zur Vermietung steht eine großzügige, helle und funktional geschnittene Büroeinheit mit einer Gesamtfläche von ca. 253 m² im 3. Obergeschoss sowie im Dachgeschoss eines gepflegten Geschäftshauses am Vaihinger Markt in Stuttgart-Vaihingen.
Die Einheit erstreckt sich über zwei Ebenen, die über eine interne Treppe miteinander verbunden sind, und überzeugt durch eine durchdachte sowie flexible Raumaufteilung. Die aktuell als Büro genutzten Flächen umfassen mehrere Einzel- und Gruppenbüros, Besprechungsräume sowie eine voll ausgestattete Küche. Auf jeder Etage stehen separate Damen- und Herren-WCs zur Verfügung, was den Komfort für Mitarbeiter und Besucher zusätzlich erhöht. Große Fensterflächen sorgen für ein angenehmes, lichtdurchflutetes Arbeitsumfeld und schaffen eine besonders attraktive Arbeitsatmosphäre.
Ein besonderer Vorteil ist der direkte Zugang aus der Tiefgarage Vaihinger Markt: Von dort aus gelangen Nutzer und Besucher bequem und wettergeschützt direkt zu den Büro- und Praxisflächen im Gebäude – ein deutlicher Mehrwert im täglichen Betrieb.
Die Einheit eignet sich nicht nur ideal für klassische Büronutzungen, sondern bietet auch hervorragendes Potenzial zur Umnutzung in eine Praxis. Durch die vorhandene Raumstruktur, die sanitäre Ausstattung sowie die Lage innerhalb eines etablierten Gesundheits- und Dienstleistungsstandortes ist eine Nutzung als Ärzte- oder Therapiepraxis problemlos realisierbar.
Das Gebäude selbst ist bereits als gefragter Standort für medizinische und dienstleistungsorientierte Nutzungen etabliert. Im Haus befinden sich unter anderem ein Lungenarzt, eine Zahnarztpraxis, Schlaftherapieärzte, Angebote im Bereich Psychotherapie und Kunsttherapie, eine Thai-Massage, eine Versicherungsagentur sowie eine freie Kirche. Diese gewachsene Mieterstruktur sorgt für eine hohe Frequenz und macht die Immobilie insbesondere für medizinische oder gesundheitsnahe Konzepte äußerst attraktiv.
Die Lage am Vaihinger Markt überzeugt durch eine ausgezeichnete Infrastruktur mit zahlreichen Einkaufsmöglichkeiten, Gastronomieangeboten sowie einer optimalen Anbindung an den öffentlichen Nahverkehr. Sowohl Mitarbeiter als auch Kunden profitieren von der zentralen und gut erreichbaren Lage.
Ausstattung
- Gesamtfläche ca. 253 m²
- Zwei Etagen: 3. Obergeschoss und Dachgeschoss
- Mehrere Büroräume für Einzel- oder Gruppennutzung
- Besprechungsräume
- Voll ausgestattete Küche
- WC's auf jeder Etage
- Interne Verbindungstreppe zwischen den Etagen
- Helle Räume mit angenehmer Arbeitsatmosphäre
- Zentrale Lage am Vaihinger Markt
- Gute Erreichbarkeit mit öffentlichen Verkehrsmitteln
- Gepflegtes Geschäftshaus mit professionellem Umfeld
Sonstige Informationen
Alle im Exposé enthaltenen Angaben basieren ausschließlich auf Informationen unseres Auftraggebers. Für die Richtigkeit und Vollständigkeit der Angaben zu diesem Immobilienangebot wird trotz sorgfältiger Bearbeitung keine Gewähr übernommen. Die Übereinstimmung des Objektzustands mit dem öffentlichen Baurecht wurde nicht geprüft. Dem Interessenten obliegt schließlich, sich über die Möglichkeiten der von ihm beabsichtigten Nutzung zu informieren und Erkundigung einzuholen.
Der Energieausweis liegt zur Besichtigung vor.